Kotle na tuhá paliva – ekonomické, spolehlivé a tradiční vytápění pro domy a firmy
Kotle na tuhá paliva – ekonomické, spolehlivé a tradiční vytápění pro domy i firmy
Vytápění dřevem zůstává jedním z nejstabilnějších a ekonomicky nejvýhodnějších řešení pro domácnosti. V době kolísajících cen energií a nejistoty na trhu mnoho majitelů domů i větších objektů hledá spolehlivý systém, který poskytuje vysoký výkon, předvídatelné náklady a dlouhodobý provoz. Právě proto mají Kotle na tuhá paliva stále důležité místo mezi preferovanými řešeními vytápění.
Tento typ vytápění se vyznačuje vysokou účinností při správně zvoleném výkonu a profesionálně navržené instalaci. Další výhodou je dostupnost palivového dřeva v mnoha regionech, což usnadňuje plánování provozních nákladů. Při dobré údržbě a správném používání může kotel na tuhá paliva poskytovat stabilní vytápění po mnoho let bez potřeby složité automatizace nebo nákladné infrastruktury.
.png)
Co je kotel na tuhá paliva
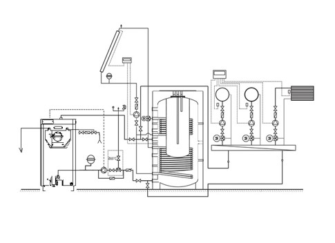
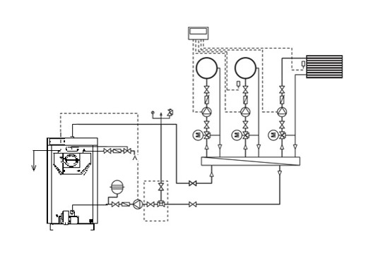
Kotel na tuhá paliva je topné zařízení pro systém ústředního vytápění, které používá pevné palivo (palivové dřevo) k ohřevu vody. Ohřátá voda cirkuluje potrubním systémem do radiátorů nebo podlahového vytápění a zajišťuje rovnoměrnou teplotu v celé budově.
Na rozdíl od běžných kamen a krbů je kotel navržen pro vytápění celého domu nebo objektu, nikoli pouze jedné místnosti. Funguje jako hlavní zdroj tepla a může být kombinován s akumulační nádrží pro vyšší účinnost a méně časté přikládání. V závislosti na modelu a konstrukci mohou kotle nabízet různé úrovně účinnosti a regulace spalování. Moderní řešení jsou navržena tak, aby optimalizovala spalování dřeva a snižovala tepelné ztráty, což je činí vhodnými jak pro nové budovy, tak pro modernizaci stávajících topných systémů.

Jak funguje kotel na tuhá paliva
Princip fungování kotlů na tuhá paliva je založen na spalování pevného paliva a přenosu vzniklého tepla do vodního pláště (tepelného výměníku). Po zapálení palivového dřeva vzniká teplo, které ohřívá vodu uvnitř kotle. Oběhové čerpadlo následně rozvádí horkou vodu do topného systému, poté se ochlazená voda vrací zpět do kotle k opětovnému ohřevu.
Moderní modely lze rozdělit do několika hlavních typů:
- Standardní kotle s přirozeným tahem
- Kotle s ventilátorem pro nucený tah
- Pyrolýzní (zplyňovací) kotle s vyšší účinností
Pyrolýzní kotle zajišťují dokonalejší spalování dřevoplynů, což vede k nižší spotřebě paliva a menším emisím.


Vhodné použití kotlů na tuhá paliva
Kotle na tuhá paliva jsou vhodné pro objekty vybavené teplovodním topným systémem. Nejčastěji se používají v:
- Rodinných domech
- Rekreačních chatách a venkovských nemovitostech
- Menších bytových domech
- Dílnách a skladech
- Průmyslových halách
- Veřejných budovách v oblastech bez plynové přípojky
Jsou obzvláště efektivní v regionech, kde je palivové dřevo snadno dostupné a cenově výhodné.
Jak zvolit správný výkon
Volba správného výkonu je jedním z nejdůležitějších faktorů při nákupu kotle. Nedostatečný výkon nezajistí dostatečný komfort, zatímco příliš vysoký výkon povede k neefektivnímu provozu a zbytečné spotřebě paliva.
Při stanovení potřebného výkonu se zohledňují následující faktory:
- Celková podlahová plocha
- Výška stropů
- Tepelná izolace
- Typ oken a dveří
- Klimatická zóna
Obecně lze počítat s tím, že 1 kW výkonu vytopí přibližně 10 m² při dobré izolaci a standardní výšce stropu. Například pro dům o ploše 150 m² se obvykle doporučuje kotel s výkonem mezi 15 a 20 kW.
Hlavní výhody kotlů na tuhá paliva
Kotle na tuhá paliva jsou oblíbené díky několika klíčovým výhodám. Nabízejí ekonomické vytápění a dlouhou životnost, zejména pokud jsou vyrobeny z kvalitní oceli.
Mezi jejich hlavní výhody patří:
- Nízké náklady na palivo
- Vysoký topný výkon
- Vhodné pro velké plochy
- Relativní nezávislost na dodavatelích energie
- Nižší počáteční investice ve srovnání s automatizovanými systémy, jako jsou Kotle na pelety nebo kompletní Soupravy na pelety
Nevýhody, které je třeba zvážit
Navzdory svým výhodám vyžadují kotle na tuhá paliva větší zapojení uživatele. Nejsou plně automatizované a potřebují pravidelnou údržbu.
Mezi hlavní nevýhody patří:
- Ruční přikládání paliva
- Potřeba skladovacího prostoru pro dřevo
- Pravidelné čištění popela
- Nižší komfort ve srovnání s peletovými systémy, jako jsou Peletová kamna s teplovodním výměníkem
Rozdíl mezi kotli na tuhá paliva a kotli na pelety
Kotle na pelety jsou moderní alternativou k tradičním systémům Kotle na tuhá paliva. Hlavní rozdíl spočívá v úrovni automatizace a způsobu přívodu paliva.
Kotel na tuhá paliva se přikládá ručně a vyžaduje pravidelnou kontrolu. Počáteční investice je obvykle nižší a palivo je často levnější a snadněji dostupné.
Kotel na pelety je vybaven automatickým podáváním paliva, elektronickým řízením a programovatelnými provozními režimy. To zajišťuje vyšší komfort a přesnější regulaci teploty, avšak počáteční investice je vyšší.
Volba mezi těmito dvěma možnostmi závisí na rozpočtu, požadované úrovni automatizace a dostupnosti paliva v daném regionu.
Rozdíl mezi kotlem na tuhá paliva a peletovými kamny s teplovodním výměníkem
Peletová kamna s teplovodním výměníkem lze také připojit k topnému systému, ale obvykle mají nižší výkon a často kombinují vytápění s dekorativní funkcí.
Kotle na tuhá paliva jsou navrženy především pro nepřetržité a efektivní vytápění celé budovy a nabízejí vyšší výkon i lepší účinnost při dlouhodobém provozu.
Na co se zaměřit před nákupem
Před konečným rozhodnutím je důležité věnovat pozornost technickým parametrům a kvalitě zpracování.
Mezi hlavní parametry, které je třeba zvážit, patří:
- Jmenovitý výkon (kW)
- Účinnost (tepelná účinnost)
- Tloušťka oceli
- Typ spalovací komory
- Přítomnost ventilátoru
- Kompatibilita s akumulační nádrží
- Záruční podmínky a servisní podpora
Jaké palivové dřevo je nejvhodnější
Účinnost kotle na tuhá paliva nezávisí pouze na modelu, ale také na kvalitě použitého paliva. Nejlepších výsledků se dosahuje se suchým tvrdým dřevem, například:
- Dub
- Buk
- Habr
Vlhkost palivového dřeva by měla být nižší než 20%, protože mokré dřevo snižuje účinnost a zvyšuje tvorbu sazí.

Často kladené otázky (FAQ)
Jak často je nutné přikládat do kotle na tuhá paliva?
Obvykle je potřeba přikládat každé 3 až 6 hodin, v závislosti na výkonu kotle, venkovní teplotě a izolaci budovy.
Může kotel na tuhá paliva fungovat bez elektřiny?
Některé modely s přirozenou cirkulací mohou fungovat bez elektřiny, ale většina systémů používá oběhové čerpadlo a vyžaduje elektrické napájení.
Je potřeba speciální komín?
Ano, správně dimenzovaný komín je nezbytný pro dobrý tah a bezpečný provoz systému.
Jaká je životnost kotle?
Při správné údržbě může kotel fungovat přibližně 10 až 20 let.
Kolik palivového dřeva je potřeba na jednu topnou sezónu?
V průměru dům o ploše 120–150 m² spotřebuje přibližně 8 až 15 m³ palivového dřeva, v závislosti na kvalitě izolace a klimatických podmínkách.
Kotle na tuhá paliva zůstávají praktickým a ekonomickým řešením vytápění, zejména v oblastech bez plynové infrastruktury. Nabízejí vysoký výkon a relativně nízké provozní náklady, ale vyžadují větší zapojení uživatele.
Správná volba závisí na velikosti nemovitosti, dostupném rozpočtu a požadované úrovni komfortu. Při správném výběru a profesionální instalaci může kotel poskytovat spolehlivé vytápění po mnoho let.
Viz také:



